ACLAA

Architecture et Urbanisme

69 rue des rigoles
75020 Paris

01 72 38 06 13
agence@aclaa.fr

Instagram
Linkedin

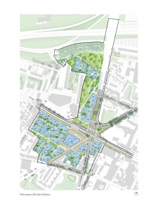
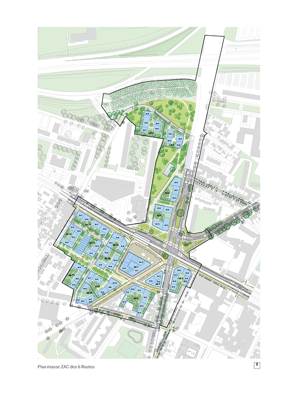
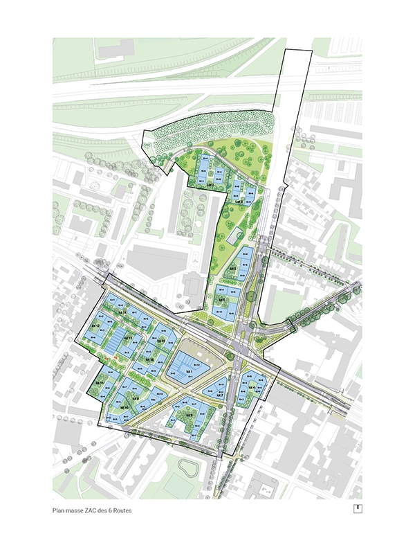
ZAC des Six Routes

Vie locale, adresse métropolitaine

Lieu : La Courneuve (93120), France
Calendrier : 2023 - Etudes en cours
Mission : Maîtrise d'œuvre urbaine
Surface : 13.5 ha
Maître d'ouvrage : SPL Plaine Commune Développement
Equipe : ACLAA (mandataire), Atelier Roberta, MA-GEO, EODD


L’amélioration et le développement du réseau de transport métropolitain dynamisent le développement urbain de la Courneuve, renforcent l’attractivité du territoire et permettent d’en révéler tout le potentiel à travers le projet de la ZAC des Six Routes.

Celui-ci offre l’opportunité de repenser tout le secteur en un véritable quartier de ville durable, une nouvelle centralité faisant le lien avec les différents quartiers de La Courneuve. L’objectif est de repenser l’infrastructure routière et ses espaces associés dans leur globalité, en lien avec la structuration du futur pôle multimodal majeur du Grand Paris. Le quartier s’affirme ainsi comme un nouveau lieu de vie et assume son rôle de nouvelle centralité à la croisée des parcours.

Le patrimoine industriel partiellement conservé garantit la préservation de l’identité historique industrielle du site et dialogue avec les nouvelles morphologies urbaines du quartier, favorisant les parcours piétons, les espaces de rencontre et de sociabilité autour des figures paysagères du quartier.

Les formes urbaines proposées offrent des vues dégagées aux futurs logements en évitant les vis-à-vis et en limitant les hauteurs. Elles développent également une diversité des modes d’habiter au sein du quartier, articulant maisons de ville, habitat intermédiaire et logements collectifs.

Le projet paysager porte l’ambition de construire un quartier apaisé, accessible et largement planté, privilégiant le confort et la qualité des déplacements piétons.


https://aclaa.fr:443/files/gimgs/th-116_ACLAA_LCE_1.jpg
https://aclaa.fr:443/files/gimgs/th-116_ACLAA_LCE_2.jpg
https://aclaa.fr:443/files/gimgs/th-116_ACLAA_LCE_3.jpg
https://aclaa.fr:443/files/gimgs/th-116_ACLAA_LCE_4.jpg
https://aclaa.fr:443/files/gimgs/th-116_ACLAA_LCE_5.jpg
https://aclaa.fr:443/files/gimgs/th-116_ACLAA_LCE_6.jpg
https://aclaa.fr:443/files/gimgs/th-116_ACLAA_LCE_7.jpg
https://aclaa.fr:443/files/gimgs/th-116_ACLAA_LCE_8.jpg
https://aclaa.fr:443/files/gimgs/th-116_ACLAA_LCE_9.jpg
https://aclaa.fr:443/files/gimgs/th-116_ACLAA_LCE_10.jpg
https://aclaa.fr:443/files/gimgs/th-116_ACLAA_LCE_11.jpg
https://aclaa.fr:443/files/gimgs/th-116_ACLAA_LCE_12.jpg
https://aclaa.fr:443/files/gimgs/th-116_ACLAA_LA COURNEUVE_PHOTO SATELLITE_v2.jpg