ACLAA

Architecture et Urbanisme

69 rue des rigoles
75020 Paris

01 72 38 06 13
agence@aclaa.fr

Instagram
Linkedin

Blanche

Du T3 au T4

Lieu : Paris, France
Calendrier : 2018
Mission : Mission complète
Programme : Rénovation complète
Coût : 125 000 €
Surface : 105 m²
Maître d'ouvrage : Particulier
Equipe : ACLAA

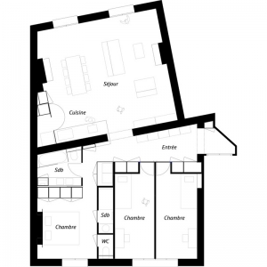
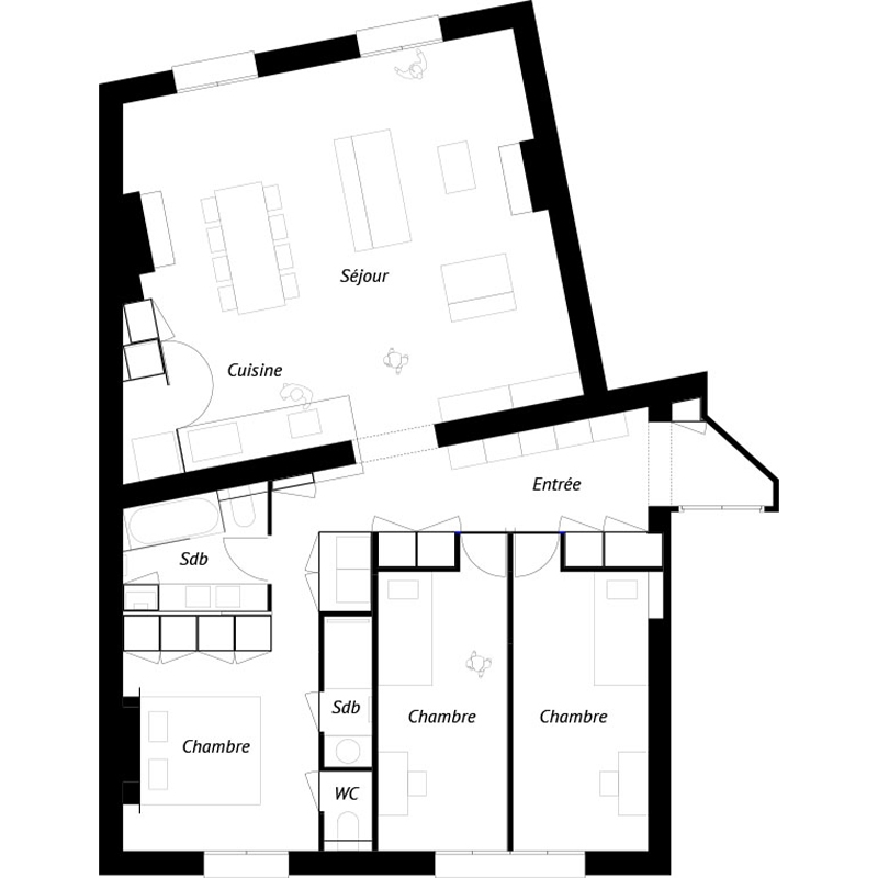
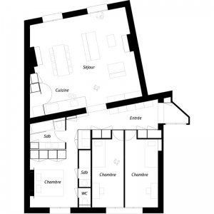
Le projet renverse l’ancienne organisation des pièces afin de créer 2 espaces distincts : côté rue, le séjour, lieu de vie et de réception. Côté cour, l’espace nuit, qui est plus intime et regroupe trois chambres ainsi que les salles d’eau.

Afin d’accompagner le visiteur vers le séjour depuis l’entrée, deux éléments en menuiserie sont réalisés. Ces éléments intègrent, des rangements, l’accès aux chambres des enfants, la salle d’eau et un WC pour la chambre parentale. La cuisine et son cellier sont traités dans le même vocabulaire. Le séjour, côté rue, tire parti des qualités spatiales et architecturales de l’haussmannien : grand volume, fenêtres toute hauteur, cheminées, parquet massif et moulures.

Les chambres pour enfants disposent d’une structure cachée afin de pouvoir accueillir une mezzanine pour optimiser l’espace.


https://aclaa.fr:443/files/gimgs/th-72_ACLAA_BLANCHE_1.jpg
https://aclaa.fr:443/files/gimgs/th-72_ACLAA_BLANCHE_4.jpg
https://aclaa.fr:443/files/gimgs/th-72_ACLAA_BLANCHE_3.jpg
https://aclaa.fr:443/files/gimgs/th-72_ACLAA_BLANCHE_2.jpg
https://aclaa.fr:443/files/gimgs/th-72_ACLAA_BLANCHE_5.jpg
https://aclaa.fr:443/files/gimgs/th-72_ACLAA_BLANCHE_6.jpg
https://aclaa.fr:443/files/gimgs/th-72_ACLAA_BLANCHE_7.jpg
https://aclaa.fr:443/files/gimgs/th-72_ACLAA_BLANCHE_8.jpg
https://aclaa.fr:443/files/gimgs/th-72_ACLAA_BLANCHE_9.jpg
https://aclaa.fr:443/files/gimgs/th-72_ACLAA_BLANCHE_10.jpg
https://aclaa.fr:443/files/gimgs/th-72_ACLAA_BLANCHE_11.jpg
https://aclaa.fr:443/files/gimgs/th-72_ACLAA_BLANCHE_12.jpg