ACLAA

Architecture et Urbanisme

69 rue des rigoles
75020 Paris

01 72 38 06 13
agence@aclaa.fr

Instagram
Linkedin

14 logements

Insertion douce

Lieu : Alfortville (94140), France
Calendrier : 2023 - Concours - non lauréat
Mission : Non lauréat
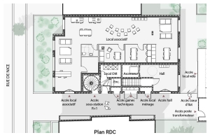
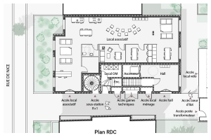
Programme: 14 logements locatifs sociaux + 1 local associatif à RDC
Coût : 1 689 936 € HT
Surface : 969 m² SDP
Maitre d’ouvrage : Logial coop
Equipe : ACLAA (mandataire), Ana ingénierie
Label et certifications : NF Habitat HQE - RE 2020, HQE très performant


Le projet s’inscrit au sein d’un secteur habité, calme et résidentiel, entre deux immeubles existants appartenant à Logial coop construits en 1991 et 1998. L’occasion ici de venir achever l’îlot urbain doit être considérée selon une approche sur mesure et délicate, attentive aux constructions voisines et à leurs habitants.

Une saillie au centre de la façade sur rue vient permettre de rattraper les deux alignements différents des façades limitrophes. Cette variation au centre de la façade créée par la même occasion une ponctuation qui s’intègre au front existant et spécifique de la rue de Nice : une façade urbaine et domestique, séquencée par des implantations et des hauteurs d’immeubles variées, et rythmée par divers dispositifs architecturaux : balcons, coursives, fûts d’escaliers en saillies ou encore toitures mansardées.

Le projet se développe sur 5 étages, il reste ainsi dans des gabarits similaires à ceux de la rue. En outre, la mise en place de deux terrasses privatives à R+5 – côté rue et côté jardin - pour le logement T2 situé au nord permet de reculer le plan de façade de 2.4 m, et de s’intégrer plus harmonieusement avec la toiture mansardée voisine.

En adéquation avec les immeubles voisins construits en béton, le projet propose de poursuivre le vocabulaire minéral de la rue, en développant une écriture sobre et élégante utilisant ce même matériau dominant : le béton, que nous souhaitons traiter par teinte (colorant ou agrégats) et sablage afin que sa texture soit assimilable à celle de la pierre.


https://aclaa.fr:443/files/gimgs/th-115_ACLAA_ALFORTVILLE_ 1.jpg
© Pierre Prevost
https://aclaa.fr:443/files/gimgs/th-115_ACLAA_ALFORTVILLE_ 2.jpg
© Pierre Prevost
https://aclaa.fr:443/files/gimgs/th-115_ACLAA_ALFORTVILLE_ 3.jpg
© Pierre Prevost
https://aclaa.fr:443/files/gimgs/th-115_ACLAA_ALFORTVILLE_ 4.jpg
https://aclaa.fr:443/files/gimgs/th-115_ACLAA_ALFORTVILLE_ 5.jpg
https://aclaa.fr:443/files/gimgs/th-115_ACLAA_ALFORTVILLE_ 6.jpg
https://aclaa.fr:443/files/gimgs/th-115_ACLAA_ALFORTVILLE_PHOTO SATELLITE.jpg