ACLAA

Architecture et Urbanisme

69 rue des rigoles
75020 Paris

01 72 38 06 13
agence@aclaa.fr

Instagram
Linkedin

69 logements

Vues sur Seine

Lieu : Ivry-sur-Seine (94205), France
Calendrier : 2021 - Chantier en cours
Mission : Mission complète
Programme: 69 logements sociaux + bureaux à RDC
Coût : 9 434 733 € HT
Surface : 5 047 m² SDP
Maitre d’ouvrage : Valophis
Equipe : ACLAA (mandataire), Setec, Atelier Roberta, Vpeas, Eléments ingénierie, At3e
Label et certifications : Label de Cerqual RT 2012 - 20%, NF Habitat HQE niveau d’entrée


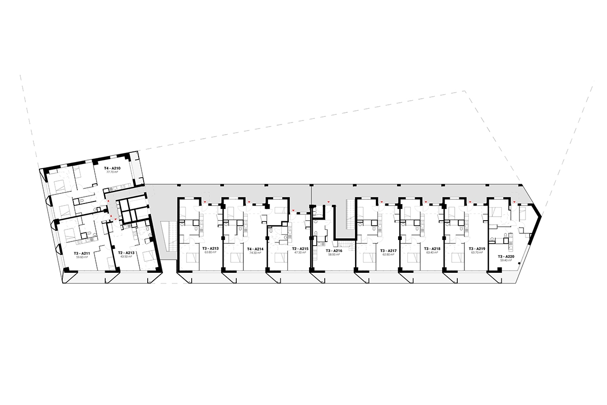
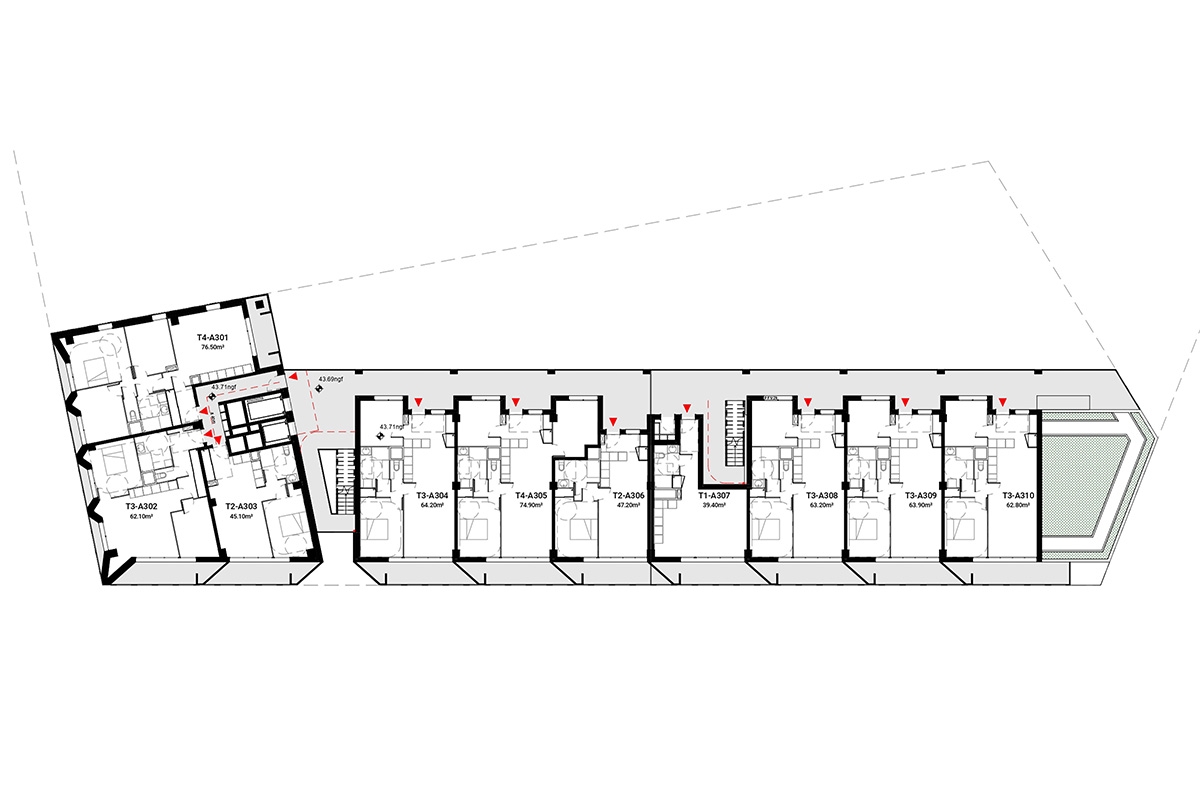
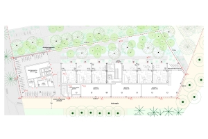
Situé au bord de la Seine au sein de la ZAC Ivry Confluences, le bâtiment effectue une transition entre les berges du fleuve et l’avenue de l’industrie située à l’ouest. Il s’organise en 2 volumes distincts :

• Un volume sur l’avenue de l’industrie qui culmine à R+10 et fait ainsi écho aux autres points hauts du quartier ;

• Un volume en gradins qui redescend vers la Seine et le parc des berges ;

Depuis toutes ses façades, l’immeuble dispose d’un dégagement visuel important qui le met en relation, soit avec le jardin central de l’îlot et le parc, soit avec la Seine et le coteau dans les étages hauts. La conception du projet s’est faite afin de tirer profit de cette situation et d’offrir des vues qualitatives à l’ensemble des logements. Ainsi, les séparatifs entre balcons ont été orientés afin d’ouvrir les vues sur le fleuve. Cet angle spécifique permet en outre de créer des celliers pour chaque logement.

La position très exposée du lot, avec une grande façade orientée sud et une autre ouest nous a obligé à veiller sur le confort d’été des logements. 80 % des appartements du projet disposent d’ouvertures sur au moins 2 façades. Les logements traversants sont les plus nombreux et certains logements sont double-orientés. Des brises soleils extérieurs sont mis en place pour les logements les plus exposés.

La structure poteaux-poutres-dalles choisie ici, plutôt qu’une structure classique en voiles béton permet aux cloisons, mais également aux murs séparatifs entre logements d’être réadaptés.


https://aclaa.fr:443/files/gimgs/th-74_ACLAA_IVRY4G4_1.jpg
© Jeudi Wang
https://aclaa.fr:443/files/gimgs/th-74_ACLAA_IVRY4G4_2.jpg
© Jeudi Wang
https://aclaa.fr:443/files/gimgs/th-74_ACLAA_IVRY4G4_3.jpg
© Jeudi Wang
https://aclaa.fr:443/files/gimgs/th-74_ACLAA_IVRY4G4_4.jpg
© Jeudi Wang
https://aclaa.fr:443/files/gimgs/th-74_ACLAA_IVRY4G4_5_v2.jpg
https://aclaa.fr:443/files/gimgs/th-74_ACLAA_IVRY4G4_6.jpg
https://aclaa.fr:443/files/gimgs/th-74_ACLAA_IVRY4G4_7.jpg
https://aclaa.fr:443/files/gimgs/th-74_ACLAA_IVRY4G4_0_v2.jpg
https://aclaa.fr:443/files/gimgs/th-74_ACLAA_IVRY4G4_8_v2.jpg
https://aclaa.fr:443/files/gimgs/th-74_ACLAA_IVRY4G4_9.jpg
https://aclaa.fr:443/files/gimgs/th-74_ACLAA_IVRY4G4_10.jpg
https://aclaa.fr:443/files/gimgs/th-74_ACLAA_IVRY4G4_11_v2.jpg
https://aclaa.fr:443/files/gimgs/th-74_ACLAA_IVRY4G4_12_v2.jpg
https://aclaa.fr:443/files/gimgs/th-74_ACLAA_IVRY4G4_13_v2.jpg
https://aclaa.fr:443/files/gimgs/th-74_ACLAA_IVRY4G4_14_v2.jpg
https://aclaa.fr:443/files/gimgs/th-74_ACLAA_IVRY4G4_15_v2.jpg
https://aclaa.fr:443/files/gimgs/th-74_ACLAA_IVRY4G4_17_v2.jpg
https://aclaa.fr:443/files/gimgs/th-74_ACLAA_IVRY4G4_18_v2.jpg
https://aclaa.fr:443/files/gimgs/th-74_ACLAA_IVRY4G4_19_v2.jpg
https://aclaa.fr:443/files/gimgs/th-74_ACLAA_IVRY4G4_20_v2.jpg
https://aclaa.fr:443/files/gimgs/th-74_ACLAA_IVRY4G4_21_v2.jpg
https://aclaa.fr:443/files/gimgs/th-74_ACLAA_IVRY4G4_22_v2.jpg
https://aclaa.fr:443/files/gimgs/th-74_ACLAA_IVRY4G4_23_v2.jpg
https://aclaa.fr:443/files/gimgs/th-74_ACLAA_IVRY 4G4_PHOTO SATELLITE_v2.jpg